Ausführungsgerechte Werkplanung
Facility Management: Werkplanung
Die Optimierung des Werkplanungsprozesses und die Kontrolle der Kosten sind wichtige Herausforderungen, mit denen Unternehmen konfrontiert sind
Eine perfekte und ausführungsgerechte Werkplanung ist für jedes Großunternehmen von entscheidender Bedeutung. Die Einhaltung von Standards und branchenspezifischen Vorschriften ist für Unternehmen bei der Werkplanung unerlässlich und erfordert ständige Anpassungen und Überprüfungen.
Werk- und Montagepläne erstellen
Ausführungsgerechte Werkplanung
Architektonische Planung und Modellierung
Ein digitales 3D-Modell eines Gebäudes auf architektonischen Blaupausen, umgeben von Bauplänen und Werkzeugen.
Im Rahmen der Ausführungsplanung wird die vorangegangene Entwurfsplanung bzw. Genehmigungsplanung von uns soweit durchgearbeitet, dass das Bauvorhaben realisiert werden kann. Während des Planungsprozesses findet meist ein intensiver Austausch mit Fachleuten wie Ingenieuren, Produktherstellern und eventuell auch ausführenden Unternehmen statt, um Detailfragen zu klären. Da tut es gut, dass wir selbst Architekten und Fachplaner einsetzen und zur Unterstützung erfahrene CAD-Experten verfügbar haben.
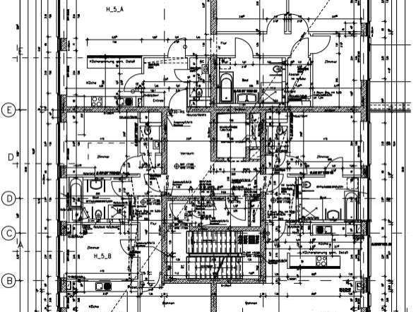
Schwerpunkt der Ausführungsplanung ist die Erstellung von Werkplänen in meist größerem Maßstab (Grundrisse und Schnitte im M 1:50, Details von M 1:20 bis M 1:1).
Ziel der Ausführungsplanung ist ein Plansatz, der zum Bau freigegeben wird. Bestandpläne fertigen wir selbstverständlich auch.
HOAI
In der deutschen Honorarordnung für Architekten und Ingenieure gilt die Ausführungsplanung als Leistungsphase 5. Bei der traditionellen Bauorganisation wird die Ausführungsplanung durch den Architekten (Ausführungsplan und Ausbaupläne), Bauingenieure (Tragwerksplanung, Schalplan, Bewehrungsplan) und Fachingenieure (z.B. Elektroplanung oder HLS-Planung, d.h. Planung für Heizung, Lüftung und Sanitär) erstellt. Beim Schlüsselfertigbau wird meistens der Totalunternehmer oder Totalübernehmer (auch oft als Generalunternehmer bezeichnet) mit der Ausführungsplanung beauftragt, der diese dann teilweise selbst erstellt oder wiederum durch Fachingenieure erstellen lässt.
Ausführungsgerechte Werkplanung: Ein Schlüssel zum Projekterfolg
Die Werkplanung bildet die Grundlage für die erfolgreiche Realisierung von Bauprojekten. Sie umfasst die detaillierte Ausarbeitung der Entwurfs- und Genehmigungsplanung und bereitet diese so auf, dass eine praktische Umsetzung möglich wird. Ein intensiver Austausch mit Fachleuten wie Ingenieuren, Produktherstellern und ausführenden Unternehmen ist in dieser Phase unerlässlich, um Detailfragen zu klären und die Planung zu präzisieren.
Die Rolle von Architekten und Fachplanern
Unser Team setzt sich aus erfahrenen Architekten, Fachplanern und CAD-Experten zusammen, die eine professionelle und effiziente Ausführungsplanung gewährleisten. Der Schwerpunkt liegt dabei auf der Erstellung von Werkplänen in einem größeren Maßstab, einschließlich Grundrissen, Schnitten und detaillierten Ansichten, die eine genaue Vorstellung des zu realisierenden Projekts vermitteln.
Zielsetzung der Ausführungsplanung
Das primäre Ziel der Ausführungsplanung ist die Erstellung eines Plansatzes, der zur Ausführung freigegeben wird. Dies beinhaltet neben den Werk- und Montageplänen auch die Fertigung von Bestandsplänen. Die sorgfältige Ausarbeitung dieser Dokumente ist entscheidend für die reibungslose Umsetzung des Bauvorhabens und die Einhaltung der vorgegebenen Zeit- und Kostenrahmen.
Perspektiven für eine Werkplanung
Die Zukunft der Werkplanung im Facility Management sieht eine verstärkte Integration von digitalen Technologien und eine noch engere Zusammenarbeit zwischen allen am Bau beteiligten Parteien vor. Durch den Einsatz moderner Planungswerkzeuge und die Förderung eines offenen Informationsaustauschs können Planungsprozesse weiter optimiert und die Effizienz von Bauprojekten gesteigert werden. In diesem Sinne streben wir danach, die Praktiken der Werkplanung kontinuierlich zu verbessern und zu verfeinern. Unser Ziel ist es, durch präzise Planung, effektive Kommunikation und die Nutzung fortschrittlicher Technologien eine Grundlage für den erfolgreichen Abschluss von Bauprojekten zu schaffen. Unsere Bemühungen in diesem Bereich spiegeln unser Engagement für Exzellenz und Innovation im Bereich der Werkplanung wider.



